California ADU

Model CA - 500 sq ft

California ADU: Comfort and Space for the Whole Family

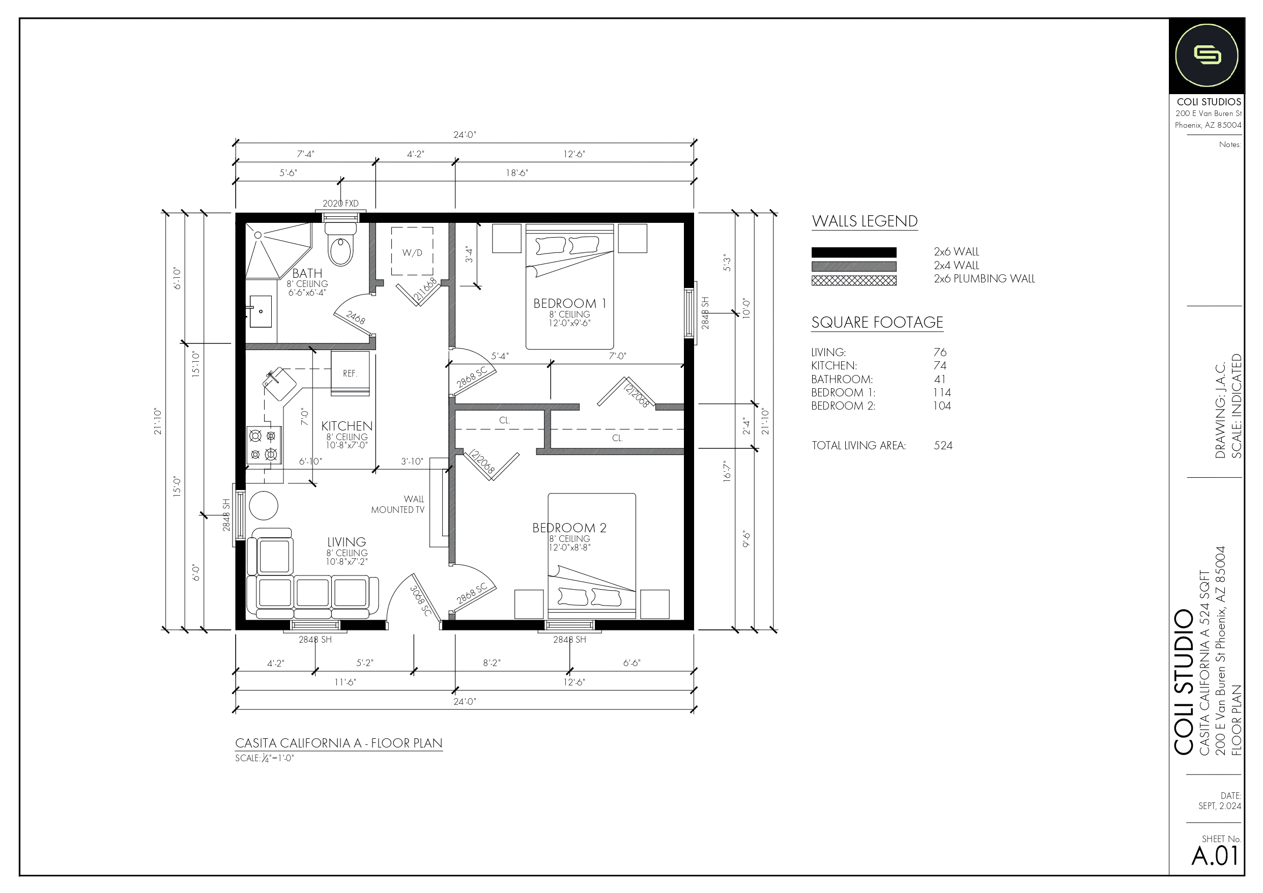
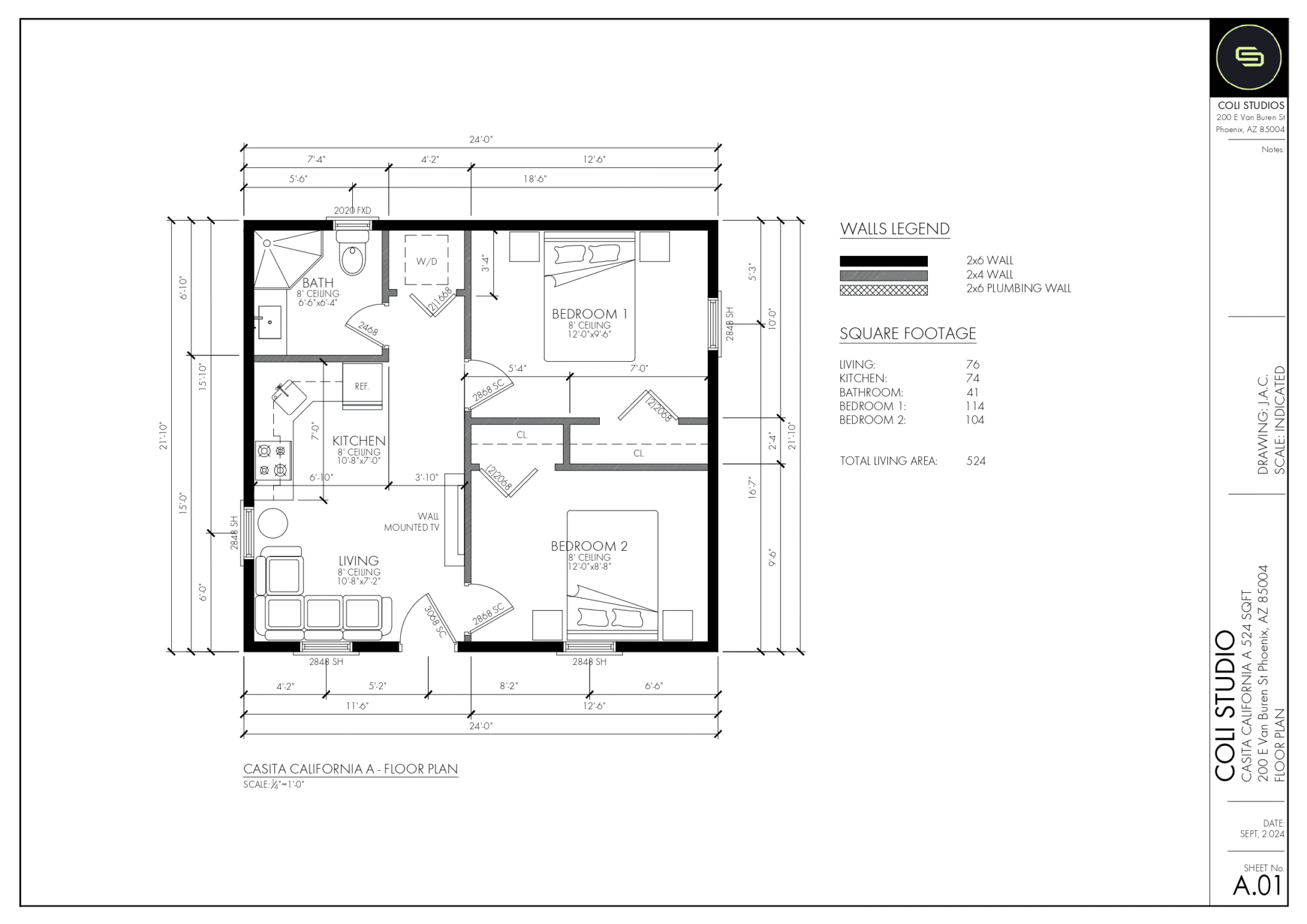
674810185-casita-california-a-500sqft-2bd-1ba_page-0001

General description:

The California ADU model is ideal for small families or couples looking for additional space with more privacy and comfort. With 500 square feet, this design offers two bedrooms, a full bathroom, a modern kitchen, and all the necessary amenities for independent living.

Features:

Provides privacy and personal space for each family member.

Includes shower, toilet, and sink.

Ample storage space for clothes and belongings.

Equipped with quality appliances, such as a stove, refrigerator, and microwave.

Convenience and practicality for everyday life.

Maintain a comfortable temperature year-round.

Enjoy hot water at all times.

Ensures good air circulation and a healthy environment.

Ready to discover how the California ADU model can transform your home? Contact us today for a free and personalized consultation!
Our customer support team is here to answer your questions. Ask us anything!