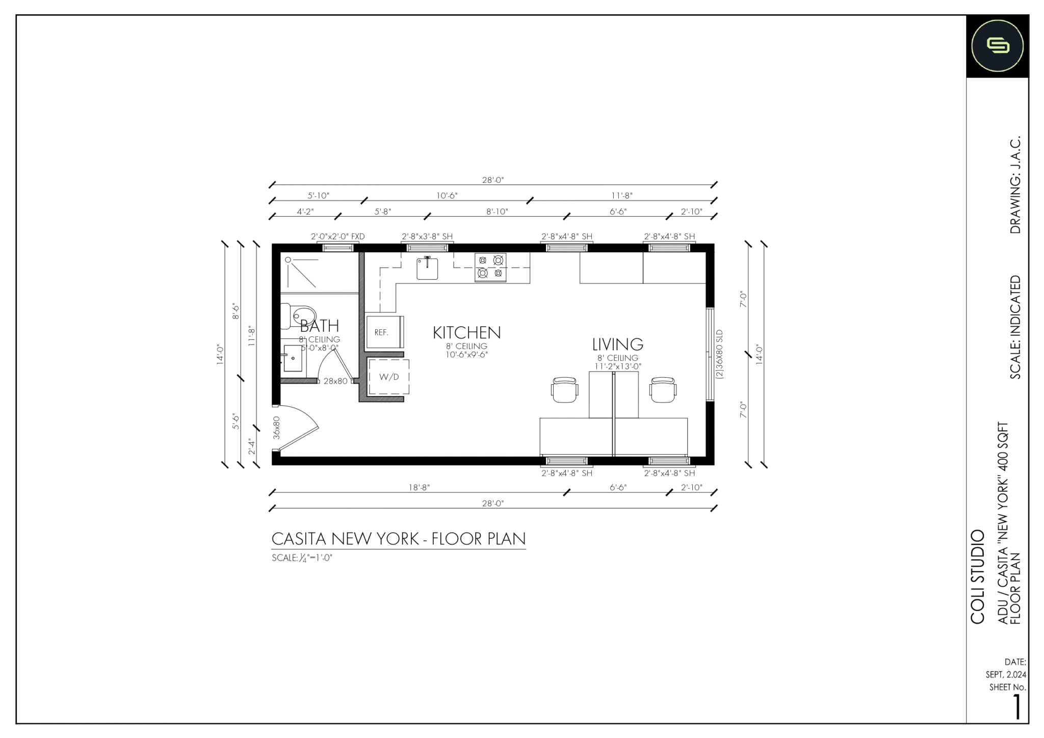
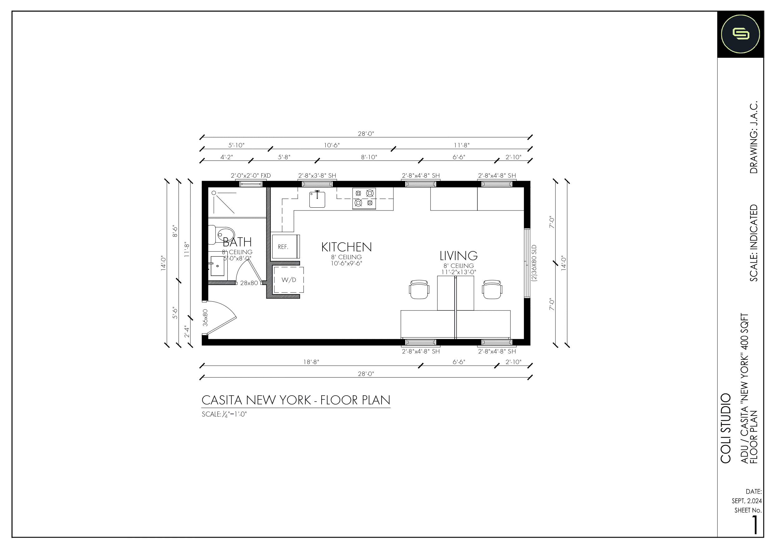
New York ADU

Model NY - 400 sq ft

New York ADU: Style and Functionality in a Compact Space

674810097-casita-new-york-400-sqft-studio_page-0001

General description:

The New York ADU model is perfect for those seeking a versatile and functional additional space. With 400 square feet, this studio-style design offers everything you need to live comfortably, including a full bathroom, a modern kitchen, and all the essential amenities.

Features:

Optimizes space and creates an open and welcoming atmosphere.

Includes shower, toilet, and sink.

Equipped with quality appliances, such as a stove, refrigerator, and microwave.

Maintain a comfortable temperature year-round.

Enjoy hot water at all times.

Ensures good air circulation and a healthy environment.

 

Ready to discover how the New York ADU model can transform your home? Contact us today for a free and personalized consultation!
Our customer support team is here to answer your questions. Ask us anything!